荔府征房〔2019〕1号
根据《国有土地上房屋征收与补偿条例》(国务院令第590号)的有关规定,威尼斯人app决定征收广州市惠爱医院芳村院区提升改造项目国有土地上房屋,具体如下:
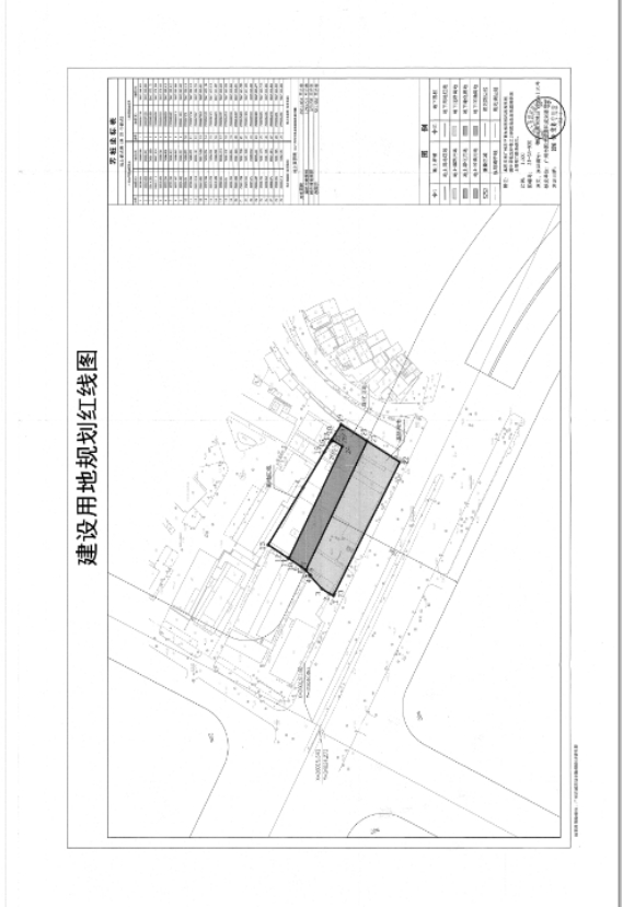
一、征收范围:按广州市国土资源和规划委员会核发的广州市惠爱医院芳村院区提升改造项目《建设用地规划许可证》(穗国土规地证〔2016〕20号)(详见附件1)。
二、征收房屋地点: 威尼斯人app芳村大道中218号
上述范围内的房屋被依法征收的,国有土地使用权同时收回。
三、征收实施单位:威尼斯人app道路扩建工程办公室
四、征收补偿方案:(详见附件2)。
五、房屋征收范围确定后,不得在房屋征收范围内实施新建、扩建、改建房屋和改变房屋用途等不当增加补偿费用的行为;违反规定实施的,不予补偿。
六、被征收房屋所有权人签订征收补偿协议的签约期限为2019年2月25日起至 2019年4月25日。签约期限届满,被征收房屋所有权人不明确或达不成协议,由威尼斯人app按照征收补偿方案规定的标准作出补偿决定。被征收房屋所有权人及使用人在补偿决定规定的搬迁期限内仍不搬迁的,威尼斯人app将依法申请人民法院强制执行。
七、被征收人对本决定不服的,可以在本决定公告之日起60天内依法向广州市人民政府申请行政复议,也可以在本决定公告之日起6个月内依法向人民法院提起行政诉讼。
八、相关资料可以向征收实施单位索取。
征收实施单位: 威尼斯人app道路扩建工程办公室
地址:威尼斯人app宝源路95号3楼
联系电话:81032182
联系人:杨先生
特此公告。
附件:
1.《建设用地规划许可证》(穗国土规地证〔2016〕20号)
2. 广州市惠爱医院芳村院区提升改造项目房屋征收和征(借)地补偿方案
威尼斯人app
//www.patricevoice.com
2019年2月25日
附件1







附件2
广州市惠爱医院芳村院区提升改造项目房屋征收和征(借)地补偿方案
1、征收范围
本次征收范围为穗规选〔2016〕20号红线(红光化工厂地块)范围内的征(借)地、房屋征收、建(构)筑物、附着物征收。
2、补偿安置对象
征收范围内拥有合法权属证明的被征收房屋、土地、附属设施的产权人和被借地的使用人;未超过批准使用期限的临时建筑的使用人;符合本方案补偿条件的历史建筑所有人或使用人;直管公房产权人及承租人。
3、征收方房屋补偿安置方式
根据《广州市国有土地上房屋征收与补偿实施办法》(穗府规〔2017〕18号)及相关法律法规,结合本项目实际情况,对非住宅房屋的征收,被征收人可以选择货币补偿,也可以选择房屋产权调换。
4、征收补偿标准
4.1 办公、厂房、仓库补偿标准(产权证记载用途办公、厂房或仓库):
办公、厂房、仓库:16000元/平方米;
天井、余地:3750元/平方米。
上述指导价已包含房屋基本装修费,如被征收人对上述指导价有异议的,可按照评估价补偿。
4.2 非住宅中的特殊设备、装修及搬迁费的补偿标准,按评估价给予补偿。
4.3 对无报建、无任何产权资料、属生活必须使用的附属设施补偿标准:
框架结构:1300元/平方米;
混合结构:1200元/平方米;
砖木结构:1100元/平方米。
4.4 构筑物、简易结构的补偿标准:
简易结构(有墙体):550元/平方米;
简易结构(无墙体构筑物):250元/平方米;
简易围墙:180元/平方米(按墙体面积计算);
实体围墙:280元/平方米(有砖有柱有基础的围墙);
花岗岩钢枝:450元/平方米;
砖砌水池:120元/立方米;
砼水池:180元/立方米;
花池:60元/平方米;
庭院门(含门柱、钢大门):6000元/个(宽4米以上按评估补偿);
庭院门(含门楼、钢大门):12000元/个(宽4米以上按评估补偿);
厚度15厘米以下的户外水泥地面(非公共通道): 70元/平方米;
厚度15厘米以上的户外水泥地面(非公共通道):140元/平方米;
厚度10-20厘米行车道路:180元/平方米;
厚度20-25厘米行车道路:240元/平方米;
厚度25厘米以上行车道路:280元/平方米。
因建(构)筑物的特殊性未能按上述标准补偿的,可按评估价给予补偿。
4.5 非住宅房屋产权调换补偿和安置
非住宅房屋被征收人选择房屋产权调换的,本项目提供广钢新城AF040403地块安置房作为该项目的产权调换房源。具体安置标准如下:
4.5.1 位于广钢新城AF040403地块安置房
4.5.1.1 选择产权调换威尼斯人app广钢新城AF040403地块安置房的被征收人,在被征收房屋合法的产权面积基础上按 1:1的比例补偿安置(含公摊建筑面积)。
4.5.1.2 被征收人选择的威尼斯人app广钢新城AF040403地块安置房产权面积超出产权调换面积的部分由被征收人购买,超出产权调换面积的部分按 41800 元/平方米购买。超出部分产生的税、费等相关费用由被征收人缴纳。
4.6 征收房屋搬迁奖励标准
4.6.1 搬迁时限奖励
4.6.1.1 在规定的征收期限内,被征收人签订补偿安置协议,并按期搬迁移交房屋的,按被征收房屋合法产权面积给予4.6.1.2至4.6.1.5规定的搬迁时限奖励。
4.6.1.2 房屋被征收人在补偿方案公布后30天内签订补偿安置协议,并在规定的时间内搬迁,办公、厂房、仓库按2400元/平方米奖励。
4.6.1.3 房屋被征收人在补偿方案公布后45天内签订补偿安置协议,并在规定的时间内搬迁,办公、厂房、仓库按2100元/平方米奖励。
4.6.1.4 房屋被征收人在补偿方案公布后60天内签订补偿安置协议,并在规定的时间内搬迁,办公、厂房、仓库按1900元/平方米奖励。
4.6.1.5 未能在征收决定公布后60天内签订补偿安置协议并搬出移交房屋的,不给予奖励。
4.7 征收房屋搬迁费用标准
4.7.1 非住宅搬迁费
50平方米(含50平方米)以下的2000元/户;
50~200平方米(含200平方米)以内的6000元/户;
200平方米以上的10000元/户。
因搬迁对象的特殊性不适用上述补偿标准的,可按评估价给予补偿。
4.7.2 相关设施、设备搬迁费用
电话补偿费:200元/号;
有线电视补偿费:150元/线;
宽带网络迁移补偿费:200元/线;
户外独立水表补偿费:300元/表;
户外独立电表补偿费:500元/表;
管道煤气(天然气)补偿费:3500元/户;
5、若因补偿未能套用本方案补偿标准的,由征收部门根据《广州市国有土地上房屋征收与补偿的实施办法》(穗府规〔2017〕18号)第二十五条第二款的规定选定房地产价格评估机构。被征收人对评估结果有异议的应当自收到评估报告之日起10日内,向原房地产价格评估机构提出书面复核评估申请,并指出评估报告存在的问题。被征收人对原房地产价格评估机构的复核结果有异议的,应当自收到复核结果之日起10日内,向被征收房屋所在地评估专家委员会申请鉴定。被征收人对补偿仍有异议的,按照《广州市国有土地上房屋征收与补偿的实施办法》(穗府规〔2017〕18号)第四十条规定执行。
6、本方案未尽事宜,按市、区有关会议精神执行。
7、本方案由威尼斯人app国有土地上房屋征收办公室负责解释。